Nullschwelle RAUCERO

Barrierefreie Bodenschwelle mit 0 mm Schwellenhöhe

REHAU Nullschwelle RAUCERO

Die bodengleiche Schwelle RAUCERO von REHAU hat den Namen „Schwelle“ eigentlich nicht verdient. Denn sie besitzt 0 mm Aufbauhöhe, sodass Sie ohne Widerstand oder Stolperfallen durch Ihre Balkon- oder Haustüren treten können. Die Schwellenlösung verschwindet im Boden, ist nur türrahmentief und nimmt hierdurch sehr geringen Raum ein. Wenn die Tür geschlossen ist, wird die Rinne komplett verdeckt und sorgt somit für eine anspruchsvolle Optik.

Ihre Vorteile auf einen Blick:

  • Mehr Komfort
  • Mehr Stolpersicherheit
  • Optisch attraktiv
  • Reinigungsfreundlich

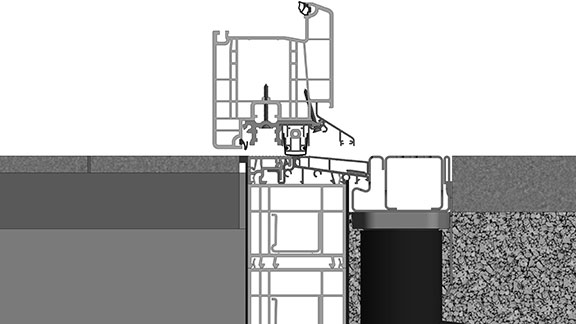
Profilansichten


Bildquelle: REHAU Industries SE & Co. KG

Geneo Haustüren mit Abfluss

Bildquelle: REHAU Industries SE & Co. KG

Geneo Haustüren ohne Abfluss

Bildquelle: REHAU Industries SE & Co. KG

Synego Haustüren mit Abfluss

Bildquelle: REHAU Industries SE & Co. KG

Synego Haustüren ohne Abfluss

Weitere Informationen zu der REHAU Nullschwelle RAUCERO

Gerne beraten wir Sie persönlich zu Nullschwelle RAUCERO von REHAU.

Quelle der auf dieser Seite gezeigten Texte und Bilder: REHAU Industries SE & Co. KG

Wir sind stolze Partner von:

  • Logo unseres Lieferanten
  • Logo unseres Lieferanten
  • Logo unseres Lieferanten
  • Logo unseres Lieferanten
  • Logo unseres Lieferanten
  • Logo unseres Lieferanten
  • Logo unseres Lieferanten
  • Logo unseres Lieferanten
  • Logo unseres Lieferanten
  • Logo unseres Lieferanten

Haben wir Ihr Interesse geweckt?

Wir beraten Sie gerne:
  0173 8513590
 homecotte[bei]gmail[punkt]com


Vorschau der einzelnen Varianten - zur Ansicht bitte klicken:
Schriftarten: